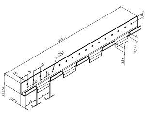
Код товара: ШНКР122215
              Гарантия 1 год при предъявлении чека
          - 
                Производитель:
- 
                  Тип Элемента:НК
- 
                  Толщина изделия:t=1,2 мм
- 
                  Диаметр отверстий:Ф-4,2 мм
- 
                  Тип стали:AISI 430
- 
                  Применение:натур, камень 20-30 мм
 
              